Забудовник ЖК «Ріхерт&Парк» каже, що зменшує площу будівництва і робитиме парк. Підписують меморандум
У пресрелізі додають, що реалізація проєкту «Ріхерт&Парк» у новому форматі «забезпечить Поділ сучасною інфраструктурою та зеленими зонами».
У пресрелізі додають, що реалізація проєкту «Ріхерт&Парк» у новому форматі «забезпечить Поділ сучасною інфраструктурою та зеленими зонами».
Зроби добру справу і отримуй винагороди!
Нам як ніколи потрібна ваша підтримка. «Хмарочос» пише про розвиток міст 11 років та 141 днів. За цей час ми опублікували 27741 новин та статей. Ми потребуємо вашої допомоги, щоб продовжувати якісно працювати далі. Приєднуйтесь до Читацького товариства «Хмарочоса» та отримуйте приємні бонуси від редакції: квитки на культурні заходи в Києві, фірмовий мерч та актуальні книжки, можливість пропонувати редакції теми та багато іншого.
Стати членом Товариства | Хто ми такі?

Компанія A development продовжує реалізацію проєкту «Ріхерт&Парк» у межах вулиць Нижньоюрківської, Кирилівської та Мильного провулку Подільського району Києва.
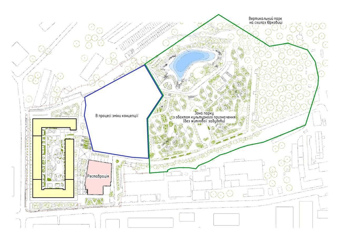
Нагадуємо, що весною 2024 забудовник презентував проєкт реконструкції пивзаводу та будівництва житлового комплексу з будинками висотою від семи до 12 поверхів (до 42 метрів). Планувалось, що саму будівлю заводу з цегляною трубою реставрують та облаштують там супермаркет, фудхол, коворкінг і фітнес-клуб.
Та активісти подали в суд, щодо висотності житлового комплексу. Окрім цього весною 2024 голосів набрала петиція, щодо створення парку на горі Юрковиці.
Після обговорення з громадськістю та розгляду справи у суді, забудовник повідомив, що заплановане «дотримання граничних обмежень висотності проєкту, узгоджених із місцевими жителями під час громадських слухань щодо реалізації цього проєкту». Зараз продовжать будівельні роботи на об’єктах висотою нижче 27 метрів.
За новим проєктом площа забудови зменшиться на 40 000 м², а звільнена територія стане парком площею 5,85 гектара, де також облаштують культурно-спортивний центр. Реалізація проєкту передбачає інвестиції понад 40 мільйонів гривень. У підтвердження своїх слів A Development укладає меморандум із Подільською РДА, за яким компанія зобов’язується дотримуватися узгоджених із громадою обмежень висотності проєкту.

Оновлення концепції п’ятої та шостої черг проєкту розробляє творча майстерня Андрія Пашенька.
Нагадуємо, що у листопаді 2024 року A Development отримала позов, пов’язаний із Бактеріологічним інститутом на вулиці Миколи Амосова. Компанію звинувачували у тому, що вони не проводять ремонтно-реставраційні роботи. На що у компанії заявили, що не відмовлялися від реставрації будівлі й планують повернутися до цього питання після отримання необхідних погоджень.
© Хмарочос | 2025
Коментарі:
*Ці коментарі модеруються відповідно до наших правил ком’юніті