5 будинків на нестандартних ділянках — їх вмістили у щілини в забудові (фото)
У підбірці — приватні будинки у Бельгії, Іспанії, В'єтнамі, Японії.
У підбірці — приватні будинки у Бельгії, Іспанії, В'єтнамі, Японії.

Вигадливість архітекторів дозволяє ефективно використати простори, на потенціал яких мало хто звертає увагу: проходи між будівлями, занедбані закутки, завузькі для звичайних будинків ділянки тощо. Видання ArchDaily присвятило матеріал таким проєктам, із яких ми відібрали найцікавіші.
Цей проєкт місцева студія AD9 Architects реалізувала у 2022 році. Видовжений житловий будинок, що розмістили у вузькій ділянці, розрахований на три покоління родини. Він поділений на три сполучені між собою секції.






Подружжя з трьома дітьми-підлітками придбали будинок майстрів біля колишнього порту. Відразу за ділянкою починається парк Королеви Астрід. Будівлю у 2021 році переробила на сучасне житло архітектурна студія Atelier Vens Vanbelle.


Замовники хотіли бути відкритішими до вулиці та сусідів, тож передня частина першого поверху — це відкрита веранда. Рівень підлоги у кухні підняли на пів метра, щоб перетворити підвал на пральню з доступом сонячного світла.



Бюро FujiwaraMuro Architects спроєктували будинок, якій займає 37 квадратних метрів ділянки в центрі міста.

Завдяки решітчатій підлозі сонячне світло сягає першого поверху.


Цей будинок розташовано у місті на самому півдні Андалусії — це найпівденніші землі континентальної Європи. Проєкт Oché House створили архітектори EovaStudio.


Ділянка має вузьку та витягнуту форму, 3,5 метри завширшки та 15 метрів завдовжки — «майже на межі умов, необхідних для проживання», за словами архітекторів. Водночас південна орієнтація та чудовий краєвид на Гібралтарську скелю забезпечили природне освітлення та вентиляцію.

Бюджет був обмежений, а проєкт — складний. Стіни зроблено з перфорованої керамічної цегли, що зазвичай потребує покриття. Водночас цей недорогий матеріал забезпечує хорошу теплоізоляцію.

Керамічні склепіння даху також не потребую додаткового облицювання, окрім незначного шару вапняної штукатурки у вологих зонах.


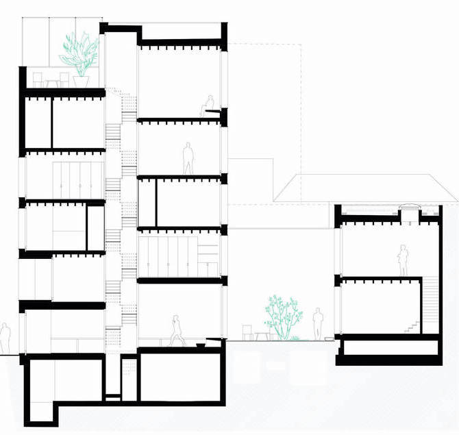
Цей будинок збудували NU architectuuratelier на дуже вузькій ділянці у 2019 році. Функціональні зони розташували навколо центрального сходового блоку. Окрім сходів, у фасадній частині є ліфт. При цьому архітектори перевернули стандартне планування, відвівши під спальні нижні поверхи, а під спільні зони — верхні.




Дивіться схожий проєкт: У Південній Африці збудували вузький будинок посеред лісу, не зрізавши жодного дерева
А 1,2-метровий у ширину будинок у Варшаві, який вважається найвужчим у світі, увійшов до підбірки про найменше житло.
Зроби добру справу і отримуй винагороди!
Нам як ніколи потрібна ваша підтримка. «Хмарочос» пише про розвиток міст 11 років та 195 днів. За цей час ми опублікували 28100 новин та статей. Ми потребуємо вашої допомоги, щоб продовжувати якісно працювати далі. Приєднуйтесь до Читацького товариства «Хмарочоса» та отримуйте приємні бонуси від редакції: квитки на культурні заходи в Києві, фірмовий мерч та актуальні книжки, можливість пропонувати редакції теми та багато іншого.
Стати членом Товариства | Хто ми такі?
© Хмарочос | 2025
Коментарі:
*Ці коментарі модеруються відповідно до наших правил ком’юніті