Старе дерево та пощерблений камінь: інтер’єр квартири китайського художника (фото)
«Дім не повинен бути готовим образом. Він має залишатися відкритим для наповнення, пристосування і тихих слідів повсякденного проживання».
«Дім не повинен бути готовим образом. Він має залишатися відкритим для наповнення, пристосування і тихих слідів повсякденного проживання».
Зроби добру справу і отримуй винагороди!
Нам як ніколи потрібна ваша підтримка. «Хмарочос» пише про розвиток міст 11 років та 267 днів. За цей час ми опублікували 28575 новин та статей. Ми потребуємо вашої допомоги, щоб продовжувати якісно працювати далі. Приєднуйтесь до Читацького товариства «Хмарочоса» та отримуйте приємні бонуси від редакції: квитки на культурні заходи в Києві, фірмовий мерч та актуальні книжки, можливість пропонувати редакції теми та багато іншого.
Стати членом Товариства | Хто ми такі?

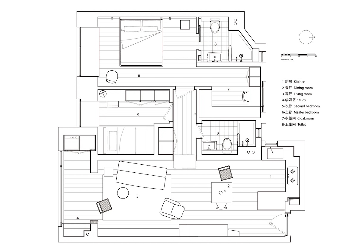
Китайська студія Mountain Soil Interior Design переоблаштувала квартиру в районі Цзядін у Шанхаї для потреб її власника — молодого художника, повідомляє ArchEyes.


Приміщення площею 105 квадратних метрів раніше мало три спальні та вітальню. Дизайнери зробили перепланування: дві спальні та простір, що об’єднує кухню, їдальню, вітальню та робочий куточок.


В основі лежала ідея плавного перетікання функцій житла та творчої роботи. Значна частина предметів інтер’єру, таких як меблі та декор, походить із майстерні художника. Художні роботи, колекційні предмети та робочі інструменти не виставлено як експозицію, а інтегровано як елементи дому.


«Дім не повинен бути готовим образом. Він має залишатися відкритим для наповнення, пристосування і тихих слідів повсякденного проживання», — зазначає Тяньтянь Дун, головний дизайнер проєкту Residence F.


Дизайнери використали старі, віднайдені матеріали, такі як дерев’яні панелі, дверні ручки, текстиль. Більшість меблів — вінтажні. Старою пощербленою деревиною обшито коридор і душову кімнату.


Перегородка в душі — кам’яна плита, що десятиліттями вивітрювалася просто неба. З такого ж каменю зроблено рукомийник.


Дизайнери попіклувалися про те, щоб функціональні об’єкти візуально не перебивали естетику простору та матеріалів. Так, холодильник приховали у коридорі, за обшивкою, що повторює оздоблення стін. Так само інтегровано і простори для зберігання.





© Хмарочос | 2025
Коментарі:
*Ці коментарі модеруються відповідно до наших правил ком’юніті