У центрі Львова адаптують середньовічний будинок за проєктом Drozdov & Partners. Він стане дещо вищим
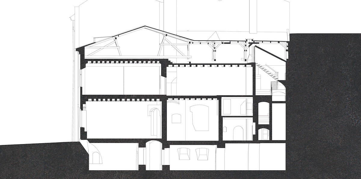
Будівля є пам’яткою архітектури національного значення, у ній збереглися інтер’єри XVI століття.
Будівля є пам’яткою архітектури національного значення, у ній збереглися інтер’єри XVI століття.

На вулиці Вірменській 17 у центрі Львова адаптують житловий будинок XVI-XVIII століття. Проєкт розробили архітектори Drozdov & Partners.

Житловий будинок перетворять на багатофункціональний громадський центр.

Будівля є пам’яткою архітектури національного значення, у ній збереглися інтер’єри XVI століття. Це зразок типової забудови середньовічного Львова зі слідами прибудов різних періодів до початку ХХ століття.

Команда бюро приєдналася до проєкту, коли реставраційні роботи в будівлі вже тривали. Усі проєктні рішення розробляли спільно з командою реставраторів під керівництвом Олега Рибчинського. Під час реставрації, зокрема, виявили та перенесли настінні розписи.

«Стан будівлі фіксується з усіма збереженими матеріалами та часовими нашаруваннями, а всі нові втручання чітко артикулюються», — наголошують у Drozdov & Partners.

Багато часових нашарувань виконано з різних матеріалів: різних типів цегли, каменю, тинькування з розписами, дерев’яних конструкцій перекриттів. Тож нові матеріали обирали як тло для існуючих.

У дворі будинку облаштують виставку кам’яних елементів, що були віднайдені під час реставрації. У підвалі буде розташовано музей з відреставрованим гіпокаустом — старовинною системою опалення, яка використовувалася з часів античності.

У підвальному поверсі передбачено реставраційні експозиції та сувенірну крамницю. На першому та другому поверхах пропонують проводити лекції, конференції, виставки, фестивалі. Зокрема, облаштують вестибюль, рецепцію, гардероб, вбиральню та ще реставраційні експозиції. Доступ до двору та першого поверху інклюзивні.

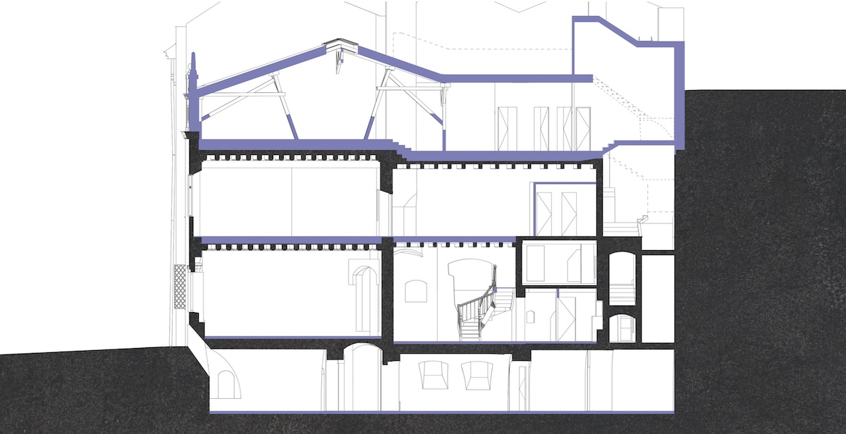
Висоту горища збільшать. Там буде коворкінгу, кухня, кафе і бар. На покрівлі передбачно терасу з видом на історичний центр міста.





Архітектурне бюро Олега Дроздова засноване в 1997 році в Харкові. У Києві компанія проєктувала Театр на Подолі, Saga City Space на вулиці Сагайдачного, а також пропонували на конкурс свій варіант Roshen Concert Hall.
Зроби добру справу і отримуй винагороди!
Нам як ніколи потрібна ваша підтримка. «Хмарочос» пише про розвиток міст 11 років та 290 днів. За цей час ми опублікували 28750 новин та статей. Ми потребуємо вашої допомоги, щоб продовжувати якісно працювати далі. Приєднуйтесь до Читацького товариства «Хмарочоса» та отримуйте приємні бонуси від редакції: квитки на культурні заходи в Києві, фірмовий мерч та актуальні книжки, можливість пропонувати редакції теми та багато іншого.
Стати членом Товариства | Хто ми такі?
© Хмарочос | 2025
Коментарі:
*Ці коментарі модеруються відповідно до наших правил ком’юніті